JULIE ANN LEE
CREATIVE /// RESEARCHER
WORK/PORTFOLIO
RESEARCH
SKETCHBOOK
JULIE ANN LEE
CREATIVE /// RESEARCHER
WORK/PORTFOLIO
RESEARCH
SKETCHBOOK
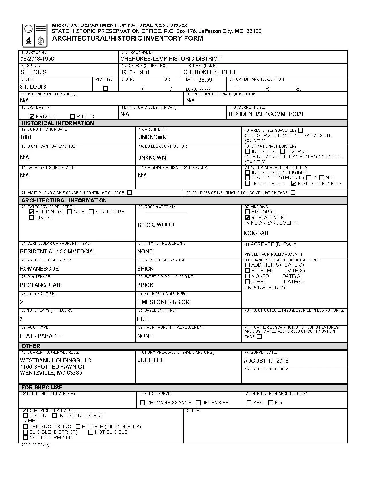
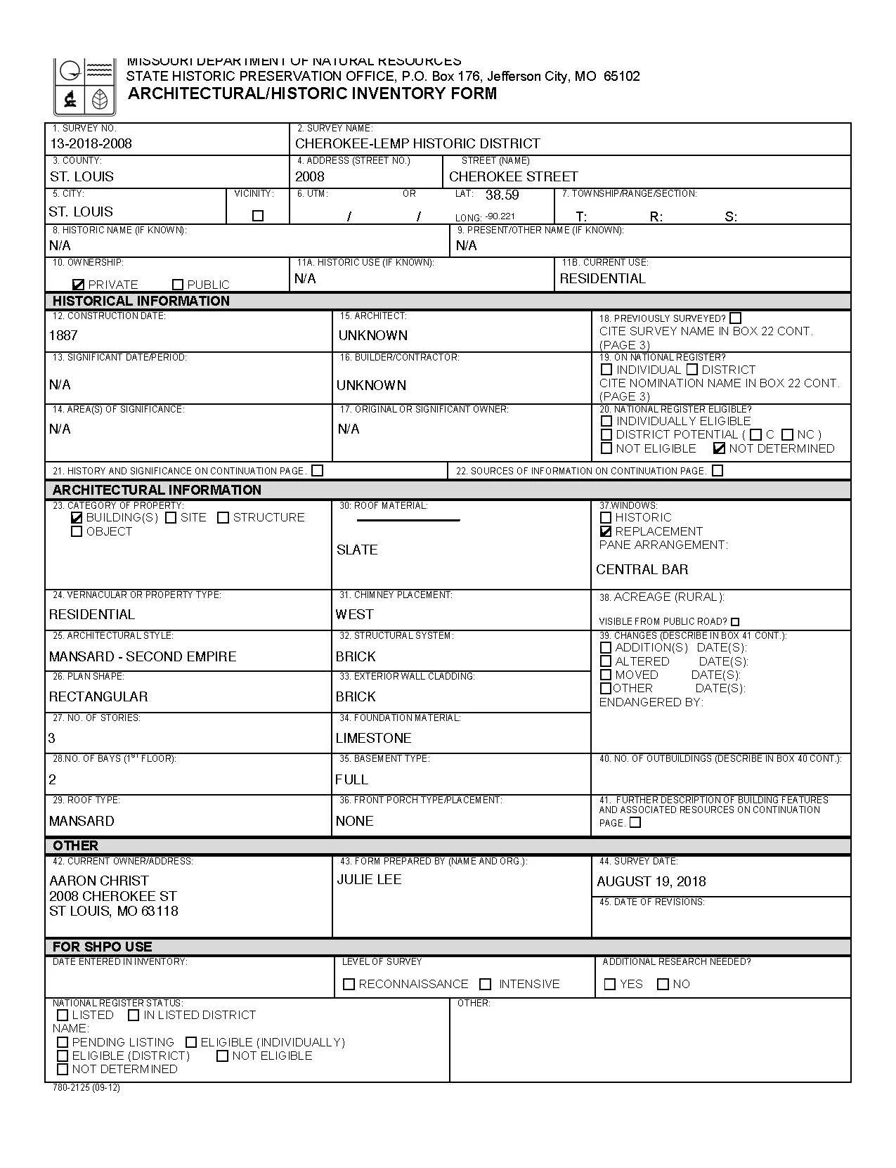
HISTORIC BUILDING DOCUMENTATION
HISTORIC BUILDING DOCUMENTATION
All
HISTORIC PRESERVATION RESEARCH
HISTORIC BUILDING DOCUMENTATION
HISTORIC PRESERVATION RESEARCH
HISTORIC BUILDING DOCUMENTATION